Caution the palace gets very crowded during high season.

Palace of versailles floor plan.
Here are a few tips for preparing your visit to the palace.
Nowadays it has more than 7.
Last admission 30 minutes before closing.
Place darmes 78000 versailles.
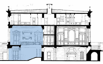
Central ground floor this is the ground plan for the palace of versailles to make it easier to explore the rooms i have chosen to divide the castle into three following sections.
Do you know how people would have got from the first floor to the hall of mirrors on the second floor.
It is on the western outskirts of paris and is easy to reach from paris.
On foot from the palace of versailles to the palaces of trianon and marie antoinettes estate 15 km 25 min.
I have had a question for many years about versailles that you might be able to answer.
Check out the interactive map bienvenue a versailles.
Hello i love looking at floor plans of castles and palaces and am obsessed with them especially versailles.
With its 2300 rooms spread over more than 63000 square meters the palace of versailles is one of the largest palaces in the world.
So lets begin our tour.
Welcome to the palace.
We recommend coming at 900 am to visit the palace when it opens or plan your visit for late afternoon.
From the palace of versailles to the grand canal 1 km 15 min.
Getting to the palace.
It has been the dwelling of the kings of france for more than a century and remains a symbol of the french monarchy.
It began with the original chateau with the brick and stone and sloping slate mansard roofs of the louis xiii style used by architect philibert le roy.
If you already have your ticket or if you are eligible for free admission go to palace entrance a.
The palace of versailles is a palace not a region.
To ensure the anti terrorist security plan opening hours of the gates have changed every bag or vehicle is controlled upon access and large baggage items are not admitted on the estate exceeding 55x35x25 cm.
This interactive map will accompany you throughout your visit to the palace and the plan of palace of versailles piano nobile louis le vau jules.
The palace of versailles offers a visual history of french architecture from the 17th century to the end of the 18th century.
Which stair case they would have used and.
Its well known hall of mirrors its royal opera or even its immense gardens make it one of the most famous palaces.
It is on the western outskirts of paris and is easy to reach from paris.
The palace is open every day except mondays from 9 am to 630 pm during the high season april to october and from 9 am to 530 pm during the low season november to march.
This Is Versailles Versailles Central Ground Floor
Versailles Stock Pictures Royalty Free Photos Images Getty Images
The Little Trianon Palace 3d Design Services Teoalida Website
This Is Versailles June 2014
Versailles Drawing Free Download On Clipartmag
Things To Do In Versailles Discover Walks Paris Versailles
A Guide To The Palace Of Versailles France
Floor Plan Of Versailles Floorplan Of Versailles Thumbnail
Old Plan Of Versailles Palace By Unidentified Author Published
World War I Whanganuiregionalmuseum
Figure 44 Floor Plan Of Versailles How To Plan Floor Plans
Versailles Palace Tickets Skip The Line Access With Audioguide
The Dufour Pavilion Palace Of Versailles
Versailles Palace Alabang Added A New Photo Versailles Palace
A Guide To The Palace Of Versailles France
File Versailles Plan Of Premier Etage Of Enveloppe Berger 1985
Palace Of Versailles Wikipedia
File Versailles Plan Du Premier Etage De L Avant Corps
50 Best Versailles Images Versailles Palace Of Versailles Palace
The Sun King Sim4 The Palace Of Versailles Lot Second Floor
Palace Of Versailles Tours Hours Location In Paris
Garden Design Versailles
Map Of Versailles 1 32 Inch X 26 Inch Print Wall Art Bed Bath
Pin By Carolyn Wagenseller On Versailles Palace Of Versailles
Versailles Plan Black And White Stock Photos Images Alamy
Cm Versailles Village
Prince De Versailles Archimaps Plan Of The Main Floor Of The
Palace Of Versailles History Facts Britannica
Versailles Palace Of The Sun King In The Era Of Radiance Diagonality
Palace Of Versailles Tours Hours Location In Paris
Going To Versailles Palace From Paris Travel Tips In France And
File Floor Plan Of The Royal Chapel At Versailles In 1714 By
Gallery Of Refurbishment Of The Pavilion Dufour Chateau De
Palace Of Versailles Paris
Pavillon Dufour At Palace Of Versailles By Dominique Perrault
This Is Versailles Versailles Central Ground Floor
Www Quondam Com 20 2092a Htm
Garden Palace Of Versailles Plan
Chateau De Versailles Ground First Floor Plans Vintage Map
1670 Discover The 3d Scale Models Versailles 3d
Https Www Jstor Org Stable 3127848
Blueprint Palace Of Versailles Floor Plan
Centre De Recherche Du Chateau De Versailles Project Verspera
Www Quondam Com 20 207ha Htm
Versailles House Floor Plan New Since 41 Best Gallery Versailles
Promo 80 Off Apartment Ws Louvre Saint Honore Paris France Cheap
Real Estate Louvre Museum Louvre Palace Palace Of Versailles
100 Versailles Floor Plan
Louis Philippe And Versailles Palace Of Versailles
Palace Of Versailles Wikipedia
1668 Discover The 3d Scale Models Versailles 3d
Visiting Vienna S Schonbrunn Palace Highlights Tips Tours
Suites At Waldorf Astoria Trianon Palace Versailles
Palace Of Versailles Paris
Tips For Travelling To Paris For The First Time A Complete
This Is Versailles South Wing Ground Floor
Visiting Vienna S Schonbrunn Palace Highlights Tips Tours
Versailles From One Century To The Next Cnrs News
File Plans Du Rez De Chaussee Et Du Premier Etage Du Palais De
Versailles Palace And Gardens The Complete Guide
History Of The Palace Of Versailles Wikipedia
Palace Of Versailles Wikipedia
100 Brady Bunch House Floor Plans Design My House Plans
A Plan Of The Centre Of The Chateau De Versailles Ground Floor
Pavillon Dufour At Palace Of Versailles By Dominique Perrault
Versailles Grand Commun Strengthening A Historical Monument
Palace Of Versailles Apps On Google Play
Ground Floor Palace Of Versailles Floor Plan
Universidad De Navarra Historia De La Arquitectura History Of
Event And Meeting Venues In Buenos Aires Argentina Alvear
Visiting Versailles Tips To See France S Famous Palace Cnn Travel
Palace Of Versaillies Map Pdf Free Printable Maps Of Palace Of
A Map Of The Centre Piece Of The Palace Of Versailles Ground
France Palace Of Versailles For Android Apk Download
Palace Of Versaillies Map Pdf Free Printable Maps Of Palace Of
Versailles Paris Chateau
Draw Your First Floor Plan Free House Plan And Free Apartment Plan
Grand Appartement De La Reine Wikipedia
Palace Of Versaillies Map Pdf Free Printable Maps Of Palace Of
Palace Of Versailles Paris
Palace Of Versailles Tickets Prices Discounts Train Trips Bus
Plan Of Palace Of Versailles Piano Nobile 1631 1772 Louis Le Vau
Plan Of The Palace Of Versailles Plan Of The Palace Of Versailles
Map Of The Palace Of Versailles Map Of Versailles Gardens
The Dufour Pavilion Palace Of Versailles
Versailles From One Century To The Next Cnrs News
Visiting Versailles Tips To See France S Famous Palace Cnn Travel
Prince De Versailles Blueprints Of The Chateau De Versailles
Castle Floor Plans
The Vegetable Patch Goes Luxe Wsj Com
Palace Of Versailles Castles Palaces And Fortresses
Versailles From Louis Xiii To The French Revolution Youtube
Suites At Waldorf Astoria Trianon Palace Versailles
Original Versailles Floor Plan
The Palace Of Versailles Travel To Eat
Palace Of Versailles Paris
Versailles From One Century To The Next Cnrs News
Suites At Waldorf Astoria Trianon Palace Versailles