Childcare Floor Plan Design

Business Plan Sample For Dog Day Care Center Of Child Template

Business Plan Sample For Dog Day Care Center Of Child Template

Classroom Preschool Floor Plan

Classroom Preschool Floor Plan

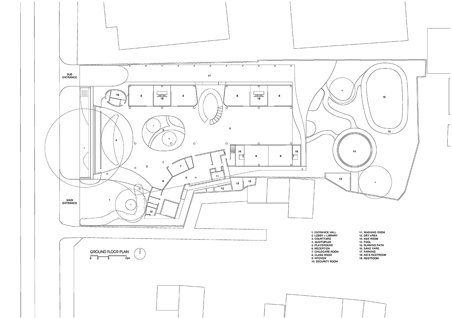
Archizen Architects Architect Designed Childcare Centres Long

Archizen Architects Architect Designed Childcare Centres Long

100 Daycare Floor Plan Design Layout Plan For House U2013

100 Daycare Floor Plan Design Layout Plan For House U2013

Fitness Center Floor Plan Gym And Spa Area Plans Gym Workout

Fitness Center Floor Plan Gym And Spa Area Plans Gym Workout

Best Price Wooden Furniture Designs Childcare Montessori Material

Best Price Wooden Furniture Designs Childcare Montessori Material

Modular Daycare Buildings Gallery Modular Genius

Modular Daycare Buildings Gallery Modular Genius

O31 Aov6dg1bgm

O31 Aov6dg1bgm

Daycare Design Miss Brenda

Daycare Design Miss Brenda

Preschool Sketch At Paintingvalley Com Explore Collection Of

Preschool Sketch At Paintingvalley Com Explore Collection Of

Daycare Floor Plans Care Home Plans Blueprints 42422

Daycare Floor Plans Care Home Plans Blueprints 42422

Sample Building Plan Medical Clinic Floor Plan Design Sample Fresh

Sample Building Plan Medical Clinic Floor Plan Design Sample Fresh

Childcare Centre On Orange Grove Road Salisbury Proposed

Childcare Centre On Orange Grove Road Salisbury Proposed

This School In Vietnam By Kientruc O Would Make Any Kid Excited

This School In Vietnam By Kientruc O Would Make Any Kid Excited

Child Care Centre Design Guide

Child Care Centre Design Guide

Calbert Design Group Llc Portfolio Categories Childcare

Calbert Design Group Llc Portfolio Categories Childcare

Childcare Layout Indoor And Outdoor Environment

Childcare Layout Indoor And Outdoor Environment

Gallery Of Mama Smile Emmanuelle Moureaux Architecture Design 11

Gallery Of Mama Smile Emmanuelle Moureaux Architecture Design 11

Sc34ma A Bout

Sc34ma A Bout

137 Best Kindergarten Images Kindergarten Design Kindergarten

137 Best Kindergarten Images Kindergarten Design Kindergarten

Gallery Of Childcare Centre In Lomme Colboc Franzen Associes 17

Gallery Of Childcare Centre In Lomme Colboc Franzen Associes 17

Room Floor Plan Generator Roomle Awesome Home And Interior Ideas

Room Floor Plan Generator Roomle Awesome Home And Interior Ideas

Child Care Head Start Children S Learning Facility Experience

Child Care Head Start Children S Learning Facility Experience

Preventing Obesity By Design South Carolina Nli

Preventing Obesity By Design South Carolina Nli

53 Positive Garland House Plans Hci Hyderabad Org

53 Positive Garland House Plans Hci Hyderabad Org

Benebaby International Daycare By Vmdpe Design Kindergartens

Benebaby International Daycare By Vmdpe Design Kindergartens

Benebaby International Daycare By Vmdpe Design Kindergartens

Benebaby International Daycare By Vmdpe Design Kindergartens

40 Best Daycare Images Infant Classroom Early Childhood

40 Best Daycare Images Infant Classroom Early Childhood

Restaurant Drawings Floor Plans Restaurant Drawings Floor Plans

Restaurant Drawings Floor Plans Restaurant Drawings Floor Plans

Toronto Floor Plan Office Hok Contract Magazine Highlights

Toronto Floor Plan Office Hok Contract Magazine Highlights

Plan For Marketing 4 A3 1 Archiscene Your Daily Architecture

Plan For Marketing 4 A3 1 Archiscene Your Daily Architecture

Preschool Room Floor Plan Kids Room By

Preschool Room Floor Plan Kids Room By

14 Floor Plan Templates Pdf Docs Excel Free Premium Templates

14 Floor Plan Templates Pdf Docs Excel Free Premium Templates

113 Best Classroom Layout Images Classroom Layout Classroom

113 Best Classroom Layout Images Classroom Layout Classroom

113 Best Classroom Layout Images Classroom Layout Classroom

113 Best Classroom Layout Images Classroom Layout Classroom

Atm Nursery Hibinosekkei Youji No Shiro Arch2o Com

Atm Nursery Hibinosekkei Youji No Shiro Arch2o Com

Childcare Center Dobongu Seoul Sca Design Lab

Childcare Center Dobongu Seoul Sca Design Lab

Childcare Centre On Orange Grove Road Salisbury Proposed

Childcare Centre On Orange Grove Road Salisbury Proposed

Free 3d House Plans And Designs Elegant 60 Luxury Daycare Floor

Free 3d House Plans And Designs Elegant 60 Luxury Daycare Floor

Online Home Plan Design Unique Different Indian House Designs

Online Home Plan Design Unique Different Indian House Designs

Small Daycare Floor Plans Crucifixlaneproject Com

Small Daycare Floor Plans Crucifixlaneproject Com

Daycare Preschool Floor Plan

Daycare Preschool Floor Plan

Final Twenty First Century Childcare Center By Melissa Tarhovicky

Final Twenty First Century Childcare Center By Melissa Tarhovicky

Adamsville Regional Health Center On Architizer

Adamsville Regional Health Center On Architizer

Creche Nursery School In Predmier By Arkon Atelier Slovakia

Creche Nursery School In Predmier By Arkon Atelier Slovakia

China Child Care Kids Interior Activity Room Design For

China Child Care Kids Interior Activity Room Design For

100 Southern Home Floor Plans Floor Plans Southern Homes Of

100 Southern Home Floor Plans Floor Plans Southern Homes Of

Jya Rchitects Designs Childcare Center With Pitched Roofs And

Jya Rchitects Designs Childcare Center With Pitched Roofs And

Avenue Green Sheshan In Shanghai By Elto Archiscene

Avenue Green Sheshan In Shanghai By Elto Archiscene

Daycare Floor Plan Creator Niente

Daycare Floor Plan Creator Niente

Burnaby Archives Arquitectura Estudioquagliata Com

Burnaby Archives Arquitectura Estudioquagliata Com

Simple Day Care Floor Plan

Simple Day Care Floor Plan

Daycare Facility Layout Floor Plan For Mindexpander Day Care

Daycare Facility Layout Floor Plan For Mindexpander Day Care

Daycare Floor Plans For Project Daycare Design Daycare

Daycare Floor Plans For Project Daycare Design Daycare

Operating Room Design Layout Paperfoil Info

Operating Room Design Layout Paperfoil Info

Small Daycare Floor Plans Samples Modern House

Small Daycare Floor Plans Samples Modern House

China Child Care Kids Interior Activity Room Design For

China Child Care Kids Interior Activity Room Design For

Accessories How To Make Floor Plans Try To Find The Answer Here

Accessories How To Make Floor Plans Try To Find The Answer Here

Benebaby International Daycare By Vmdpe Design Kindergartens

Benebaby International Daycare By Vmdpe Design Kindergartens

Space Salim Tari Architects

Space Salim Tari Architects

Day Care Center Layout Child Care Facility Starting A Daycare

Day Care Center Layout Child Care Facility Starting A Daycare

Preschool Room Floor Plan Kids Room By

Preschool Room Floor Plan Kids Room By

Operating Room Design Layout Operation Theater Paperfoil Info

Operating Room Design Layout Operation Theater Paperfoil Info

100 Floor Plan For Child Care Center Urbansurrey U2013 Page

100 Floor Plan For Child Care Center Urbansurrey U2013 Page

76 Menu Layout Design Ideas Menu Layout Design Ideas

76 Menu Layout Design Ideas Menu Layout Design Ideas

Daycare Stock Illustrations 2 440 Daycare Stock Illustrations

Daycare Stock Illustrations 2 440 Daycare Stock Illustrations

Mercedes Spence On Twitter Lovely Project Work Produced By Post

Mercedes Spence On Twitter Lovely Project Work Produced By Post

Sample Business Plan For Starting A Daycare Center

Sample Business Plan For Starting A Daycare Center

Kindergarten In Vietnam By Kientruc O Features A Hilltop Play Area

Kindergarten In Vietnam By Kientruc O Features A Hilltop Play Area

Gallery Of Chrysalis Childcare Centre Collingridge And Smith

Gallery Of Chrysalis Childcare Centre Collingridge And Smith

Https Www Gsa Gov Cdnstatic Designguidesmall Pdf

Https Www Gsa Gov Cdnstatic Designguidesmall Pdf

Designs By Eileen May 2013

Designs By Eileen May 2013

Preschool Floor Plans Best Of Care Plan For Home Care Preschool

Preschool Floor Plans Best Of Care Plan For Home Care Preschool

Thinking Exercises How To Believe Out From The Box Autozkin Co

Thinking Exercises How To Believe Out From The Box Autozkin Co

Child Care Head Start Children S Learning Facility Experience

Child Care Head Start Children S Learning Facility Experience

Cui Childcare Fitout Project By Margaret Ok Issuu

Cui Childcare Fitout Project By Margaret Ok Issuu

14 Floor Plan Templates Pdf Docs Excel Free Premium Templates

14 Floor Plan Templates Pdf Docs Excel Free Premium Templates

Draw Home Plans Luxury Home Designs Floor Plans Fresh Floor Plan

Draw Home Plans Luxury Home Designs Floor Plans Fresh Floor Plan

Basic Floor Plans Mini Hotel Floor Plan Small Hotel Plan With

Basic Floor Plans Mini Hotel Floor Plan Small Hotel Plan With

113 Best Classroom Layout Images Classroom Layout Classroom

113 Best Classroom Layout Images Classroom Layout Classroom

Learning By Design Magazine Application

Learning By Design Magazine Application

100 Child Care Floor Plans Free Room Planning Package For

100 Child Care Floor Plans Free Room Planning Package For

Avenue Green Sheshan In Shanghai By Elto Archiscene

Avenue Green Sheshan In Shanghai By Elto Archiscene

Examples Of School Building Design Plans To Download Biblus

Examples Of School Building Design Plans To Download Biblus

Service Blueprint Of School 2yamaha Com

Service Blueprint Of School 2yamaha Com

Child Care Center Business Plan

Child Care Center Business Plan

How To Choose The Right Child Care Center Floor Plans

How To Choose The Right Child Care Center Floor Plans

Arch2o D1 Kindergarten And Nursery Hibinosekkei Youji No Shiro

Arch2o D1 Kindergarten And Nursery Hibinosekkei Youji No Shiro

Arch2o Am Kindergarten And Nursery Hibinosekkei Youji No Shiro

Arch2o Am Kindergarten And Nursery Hibinosekkei Youji No Shiro

Km Kindergarten By Hibinosekkei Youji No Shiro 0a04 Inhabitat

Km Kindergarten By Hibinosekkei Youji No Shiro 0a04 Inhabitat

05 October 2011 Cheryl S Child Care

05 October 2011 Cheryl S Child Care

Attachments Of Council 2 October 2018

Attachments Of Council 2 October 2018

25 Best Day Care Near Saint Leonard Maryland Facebook Last

25 Best Day Care Near Saint Leonard Maryland Facebook Last

Daycare Center Day Care Floor Plan

Daycare Center Day Care Floor Plan

Https Www Planning Nsw Gov Au Media Files Dpe Guidelines Draft Child Care Planning Guideline 2016 12 Ashx

Https Www Planning Nsw Gov Au Media Files Dpe Guidelines Draft Child Care Planning Guideline 2016 12 Ashx

Floor Plan Software Create Floor Plan Easily From Templates And

Floor Plan Software Create Floor Plan Easily From Templates And

Gallery Of Maebong Daycare Center Daniel Valle Architects 22

Gallery Of Maebong Daycare Center Daniel Valle Architects 22

Gallery Of Lucinahaven Toulov Childcare Cebra 20

Gallery Of Lucinahaven Toulov Childcare Cebra 20